网站首页
新闻资讯
公司简介
公司荣誉
产品展示
产品介绍
联系我们
信息反馈
电子邮局
混合设备
过滤及分离设备
阻火器
阻火呼吸阀
视 镜
规整填料
噪声控制设备
电话
:0513-83214397 83356629
手机:13801464197
传真:
0513-83214397
邮箱:sl@ntsljx.com
网址:www.ntsljx.com
邮编:226200
地址:启东市汇龙镇环城北路
噪声控制设备
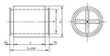
二、SCZ型轴流风机配用消声器
1.结构形式
采用阻性消声筒体和十字形吸声片组成的阻性消声器,消声量大于25dB(A)(如图54)
2.适用范围
适用于轴流式通风机的空气动力性噪声。
3.型号及性能参数(见表64) 表64
型号
适用风量
m3/h
外形尺寸/mm
Φ
Φ1
L
SCZ3
2000
310
410
400
SCZ4
4000
410
510
400
SCZ5
7000
510
610
500
SCZ6
18000
610
710
600
SCZ7
23000
710
810
700
SCZ8
30000
810
910
800
SCZ10
40000
1010
1110
1000
图54
南通市松立机械有限公司
地址:启东市汇龙镇环城北路 邮编:226200 联系人:顾永生 手机:13801464197
电话:0513-83214397 83356629 传真:0513-83214397 http://www.ntsljx.com E-mail:sl@ntsljx.com
炼炉混氧器