网站首页
新闻资讯
公司简介
公司荣誉
产品展示
产品介绍
联系我们
信息反馈
电子邮局
混合设备
过滤及分离设备
阻火器
阻火呼吸阀
视 镜
规整填料
噪声控制设备
电话
:0513-83214397 83356629
手机:13801464197
传真:
0513-83214397
邮箱:sl@ntsljx.com
网址:www.ntsljx.com
邮编:226200
地址:启东市汇龙镇环城北路
噪声控制设备
三、SGLX型高压离心风机配用消声器
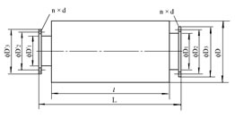
1.结构形式
采用阻抗复合型,消声量大于30dB(A),
气流阻损小于300Pa(如图55)。
2.适用范围
与高压离心风机配套使用,同时也可作锅炉引风机、鼓风机进排气消声用。
图55
3.型号及性能参数(见表65) 表65
型号
标准流量
m3/h
外形尺寸/mm
大 端/mm
小 端/mm
D
I
L
D1
D2
D3
n
d
D'1
D'2
D'3
n'
d'
SGLX-2.3
2300
420
1500
1700
230
310
345
8
18
180
260
295
8
18
SGLX-3.6
3600
530
1600
1800
280
365
400
12
18
230
310
345
8
18
SGLX-5.6
5600
620
1500
1700
350
445
485
12
22
280
365
400
12
18
SGLX-8.5
8500
700
1550
1800
430
530
570
16
22
350
445
485
12
22
SGLX-13
13700
800
1550
1800
530
630
670
16
22
450
550
590
16
22
SGLX-17
17100
900
1600
1850
600
705
855
20
24
500
600
640
16
22
SGLX-25
25000
1040
1650
1900
700
810
860
20
24
600
705
755
20
24
SGLX-35
35500
1190
1900
2200
840
950
1000
24
24
700
810
860
20
24
SGLX-53
53800
1500
2300
2600
1000
1110
1160
24
24
900
1010
1060
24
24
SGLX-83
83100
1780
2900
3200
1300
1420
1420
30
30
1100
1220
1280
28
30
南通市松立机械有限公司
地址:启东市汇龙镇环城北路 邮编:226200 联系人:顾永生 手机:13801464197
电话:0513-83214397 83356629 传真:0513-83214397 http://www.ntsljx.com E-mail:sl@ntsljx.com
炼炉混氧器