网站首页
新闻资讯
公司简介
公司荣誉
产品展示
产品介绍
联系我们
信息反馈
电子邮局
混合设备
过滤及分离设备
阻火器
阻火呼吸阀
视 镜
规整填料
噪声控制设备
电话
:0513-83214397 83356629
手机:13801464197
传真:
0513-83214397
邮箱:sl@ntsljx.com
网址:www.ntsljx.com
邮编:226200
地址:启东市汇龙镇环城北路
噪声控制设备
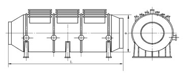
四、SGMX型高炉煤气减压阀配用消声器
1.结构形式
采用阻性片式消声装置,消声构件可灵活更换,烟尘清扫方便(如图56)
2.适用范围
控制高炉煤气回收系统中减压阀组的气流噪声,适用压力0.01~0.013MPa。
图56
3.型号及性能参数(见表66) 表66
消声器
型 号
减 压 阀
外形尺寸/mm
连接管道尺寸/mm
平 均
消声量
/dB
压 力
损 失
/Pa
气体流量
m3/h
气体压力
/MPa
L
Φ
入 口
出 口
SGMX-1
200000
0.010
16500
3620
3020
2020
>30
<300
SGMX-2
400000
0.012
17345
4532
4032
2420
>30
<300
SGMX-3
700000
0.013
19300
5540
4540
3020
>30
<300
南通市松立机械有限公司
地址:启东市汇龙镇环城北路 邮编:226200 联系人:顾永生 手机:13801464197
电话:0513-83214397 83356629 传真:0513-83214397 http://www.ntsljx.com E-mail:sl@ntsljx.com
炼炉混氧器